Location Appartement 2 Pièces 45 m²

orleans
Référence : 12045

680 €
charges comprises

Description

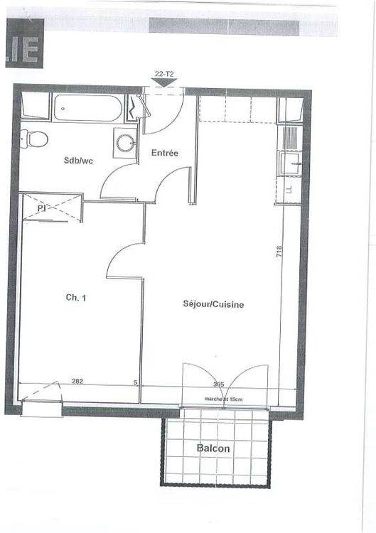
ORLEANS - QUARTIER MURLINS dans résidence de STANDING appartement comprenant : une entrée, une salle de séjour, une cuisine aménagée et équipée ouverte sur salle de séjour, une belle chambre avec placard, une salle de bain avec wc. un emplacement de stationnement au sous sol.

Informations sur le prix

Loyer de 680 € charges comprises dont 100 € par mois de provisions pour charges - régularisation annuelle
Honoraires charge locataire : 593.03 € TTC dont 136.96 € TTC pour état des lieux
Dépôt de garantie : 580 €

Informations

  • Type de bien : Appartement
  • Disponible : 07/06/2026
  • Date de construction : 2019

Détails

  • Etage : 1
  • Etat général : Neuf
  • Meublé : non
  • Surface : 45.2 m²
  • Type de cuisine : Aménagée et équipée
  • Type de chauffage : Collectif
  • Mode de chauffage : Gaz
  • Nombre de pièce(s) : 2
  • Nombre de chambre(s) : 1
  • Nombre de salle(s) de bain : 1
  • Nombre de balcon(s) : 1
  • Nombre de parking(s) : 1

Bilan énergétique

Consommation énergétique

A B C
95
Kwh/m².an
C <= 180 kWh/m²/an
D E F G

Émission de gaz

A B C
18
KgeqCO2/m².an
C <= 30 kg eq.CO2/m²/an
D E F G

 
Montant estimé des dépenses annuelles d'énergie pour un usage standard entre 396€ et 536€ au 11/12/2024

Bilan énergétique

DPE : 95
GES : 18

Les informations sur les risques auxquels ce bien est exposé sont disponibles sur le site Géorisques : www.georisques.gouv.fr

Point d'intérêts

Nous écrire

Faisons connaissance

Pour des raisons de sécurité, merci de saisir le code suivant

Captcha anti-spam
(Regénérer)

Les données personnelles sont destinées à notre agence dans le cadre de son activité commerciale, et, le cas échéant, vous permettent de recevoir des offres commerciales de notre part, sauf opposition de votre part.