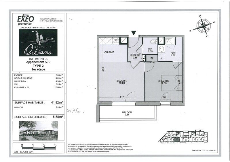
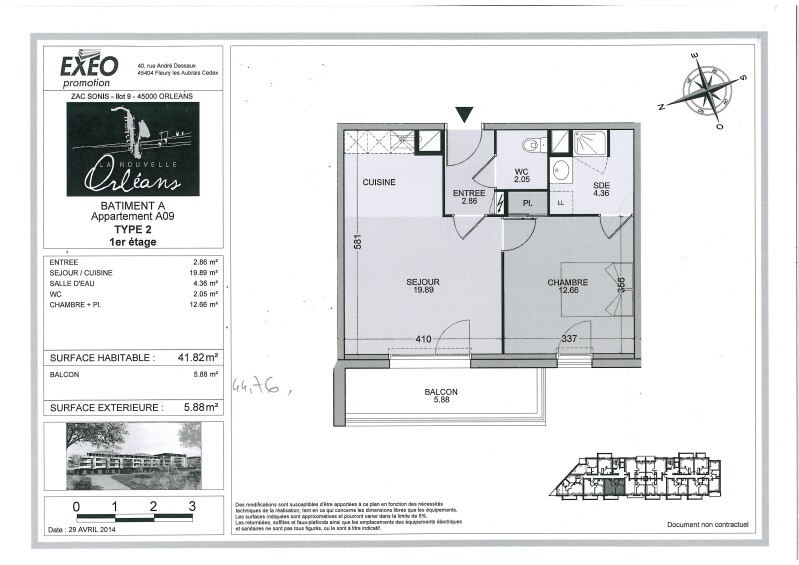
Location Appartement 2 Pièces 41 m²

orleans
Référence : 11267

617 €
charges comprises

Description

ORLEANS - QUARTIER SONIS Dans résidence de 2016, appartement 2 pièces donnant sur le parc comprenant un séjour avec une cuisine ouverte entièrment aménagée et equipée (plaque de cuisson, four, hotte et refrigérateur), une chambre avec placards, un balcon et une place de parking.

Informations sur le prix

Loyer de 617 € charges comprises dont 45 € par mois de provisions pour charges - régularisation annuelle
Honoraires charge locataire : 543.66 € TTC dont 125.46 € TTC pour état des lieux
Dépôt de garantie : 572 €

Informations

  • Type de bien : Appartement
  • Disponible : 16/11/2025
  • Date de construction : 2016

Détails

  • Etage : 1
  • Etat général : Neuf
  • Exposition : Ouest
  • Meublé : non
  • Surface : 41.82 m²
  • Type de cuisine : Aménagée et équipée
  • Type de chauffage : Individuel
  • Mode de chauffage : Gaz
  • Nombre de pièce(s) : 2
  • Nombre de chambre(s) : 1
  • Nombre de salle(s) d'eau : 1
  • Nombre de balcon(s) : 1
  • Nombre de garage(s) : 1
  • Nombre de parking(s) : 1

Bilan énergétique

Consommation énergétique

A B C
70
Kwh/m².an
C <= 180 DPE kWh/m²/an
D E F G

Émission de gaz

A B C
16
KgeqCO2/m².an
C <= 30 GES kg eq.CO2/m²/an
D E F G

Bilan énergétique

DPE : 70
GES : 16

Les informations sur les risques auxquels ce bien est exposé sont disponibles sur le site Géorisques : www.georisques.gouv.fr

Point d'intérêts

Nous écrire

Faisons connaissance

Pour des raisons de sécurité, merci de saisir le code suivant

Captcha anti-spam
(Regénérer)

Les données personnelles sont destinées à notre agence dans le cadre de son activité commerciale, et, le cas échéant, vous permettent de recevoir des offres commerciales de notre part, sauf opposition de votre part.