Location Appartement 2 Pièces 41 m²

orleans
Référence : 11263

575 €
charges comprises

Description

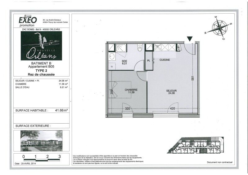
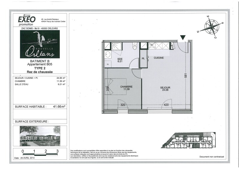
ORLEANS - QUARTIER DUNOIS Appartement 2 pièces de 42m² comprenant : une cuisine aménagée et équipée (plaque de cuisson, four, hotte et refrigérateur) ouverte sur le séjour, une chambre, une salle d'eau avec wc. 2 places de parking sous sol

Informations sur le prix

Loyer de 575 € charges comprises dont 40 € par mois de provisions pour charges - régularisation annuelle
Honoraires charge locataire : 541.58 € TTC dont 124.98 € TTC pour état des lieux
Dépôt de garantie : 535 €

Informations

  • Type de bien : Appartement
  • Disponible : 12/11/2025
  • Date de construction : 2016

Détails

  • Etat général : Neuf
  • Exposition : Ouest
  • Meublé : non
  • Surface : 41.66 m²
  • Type de cuisine : Aménagée et équipée
  • Type de chauffage : Individuel
  • Mode de chauffage : Electrique
  • Nombre de pièce(s) : 2
  • Nombre de chambre(s) : 1
  • Nombre de salle(s) d'eau : 1
  • Nombre de garage(s) : 2

Bilan énergétique

Consommation énergétique

A B C
147
Kwh/m².an
C <= 180 DPE kWh/m²/an
D E F G

Émission de gaz

A B C
29
KgeqCO2/m².an
C <= 30 GES kg eq.CO2/m²/an
D E F G

 
Montant estimé des dépenses annuelles d'énergie pour un usage standard entre 578€ et 782€ au 20/10/2022

Bilan énergétique

DPE : 147
GES : 29

Les informations sur les risques auxquels ce bien est exposé sont disponibles sur le site Géorisques : www.georisques.gouv.fr

Point d'intérêts

Nous écrire

Faisons connaissance

Pour des raisons de sécurité, merci de saisir le code suivant

Captcha anti-spam
(Regénérer)

Les données personnelles sont destinées à notre agence dans le cadre de son activité commerciale, et, le cas échéant, vous permettent de recevoir des offres commerciales de notre part, sauf opposition de votre part.